top of page
INICI
QUI SOM
PROJECTES
CONTACTE
More
Use tab to navigate through the menu items.
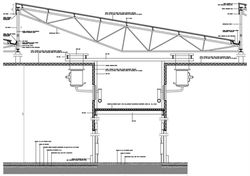
CENTRAL HORTOFRUTÍCULA A LA CTRA. N-II. LLEIDA
FITXA
IMATGES
DOCUMENTACIO GRAFICA
TORNA
bottom of page